12099:中古戸建 鶴ヶ丘
| 価格 | 2,950万円 |
|---|---|
| 所在地 | 鶴ヶ島市大字鶴ヶ丘 |
| 交通 | 東武東上線 鶴ヶ島駅まで 徒歩14分 |
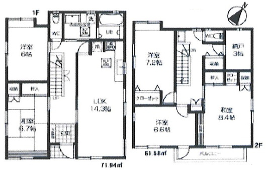
| 間取 | 5SLDK |
| 土地面積 | 160.45m²(48.53坪) |
| 建物面積 | 133.52m²(40.38坪) |
| 私道面積 | - |
| 築年月 | 2004/01 |
| 学区 | 小学校区:鶴ヶ島市立鶴ヶ島第二小学校 550m 中学校区:鶴ヶ島市立南中学校 1,300m |
| 建物構造 | 木造 |
|---|---|
| 階建 | 地上2階建 |
| 建ぺい率 | 60% |
| 容積率 | 200% |
| 地目 | 宅地 |
| 用途地域 | 第一種中高層住居専用地域 |
| 土地権利 | 所有権 |
| 取引態様 | 仲介 |
| 引渡時期 | 相談 |
| セットバック | |
|---|---|
| 接道 | 南東 4m(幅員) 私道 |
| 諸費用 | |
| 他法条例 | |
| 建築確認番号 | |
| 取引条件有効期限 | 令和07年12月22日 |
特色
駐車場、南道路、公営水道、公共本下水、空家、現況渡し
コメント
東武東上線『鶴ヶ島』駅徒歩14分!
鶴ヶ島第二小学校・鶴ヶ島南中学校エリア!
南東道路のため陽当たり良好!
本下水!
空家のためいつでも内覧可能!
内覧をご希望の方は当社までご連絡下さい!
周辺地図
位置情報に関するご注意:現在位置情報は精査中の為、正確ではない場合があります。あくまで参考程度の情報となります。













