12362:新築戸建 清水町
| 価格 | 4,199万円 |
|---|---|
| 所在地 | 坂戸市清水町 |
| 交通 | 東武東上線 北坂戸駅まで 徒歩17分 |
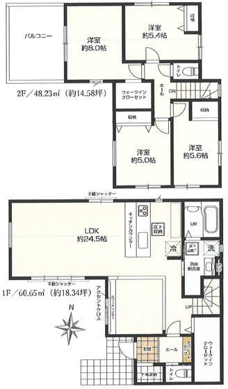
| 間取 | 4LDK |
| 土地面積 | 199.06m²(60.21坪) |
| 建物面積 | 108.88m²(32.93坪) |
| 私道面積 | - |
| 築年月 | 2025/09 |
| 学区 | 小学校区:坂戸市立坂戸小学校 950m 中学校区:坂戸市立坂戸中学校 1,100m |
| 建物構造 | 木造アスファルトシング葺 |
|---|---|
| 階建 | 地上2階建 |
| 建ぺい率 | 50% |
| 容積率 | 80% |
| 地目 | 宅地 |
| 用途地域 | 第一種低層住居専用地域 |
| 土地権利 | 所有権 |
| 取引態様 | 仲介 |
| 引渡時期 | 相談 |
| セットバック | |
|---|---|
| 接道 | 西 6.9m(幅員) 公道 13.2m(接面) |
| 諸費用 | |
| 他法条例 | |
| 建築確認番号 | 第25UDI1W建03388号 |
| 取引条件有効期限 | 令和07年12月22日 |
特色
駐車場、駐車スペース3台以上、公営水道、公共本下水、都市ガス、第一住宅坂戸団地地区計画(A地区)、司法書士(売主指定)
コメント
東武東上線『北坂戸』駅徒歩17分!
坂戸小学校・坂戸中学校エリア!
広々とした約60坪の整形地!
都市ガス・本下水!
駐車スペース並列3台可能!
都市ガス・本下水!
現在、建築中のため内覧をご希望の方は日程の調整が必要です!
内覧をご希望の方は当社までご連絡下さい!
周辺地図
位置情報に関するご注意:現在位置情報は精査中の為、正確ではない場合があります。あくまで参考程度の情報となります。










