12363:中古戸建 脚折
| 価格 | 1,600万円 |
|---|---|
| 所在地 | 鶴ヶ島市大字脚折 |
| 交通 | 東武東上線 若葉駅まで 徒歩28分 |
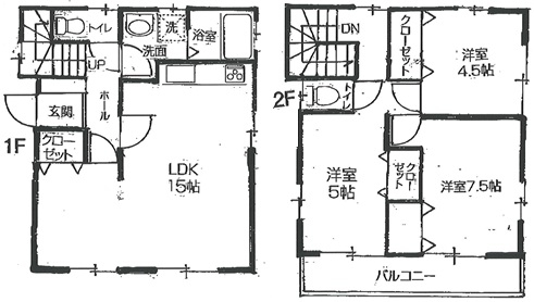
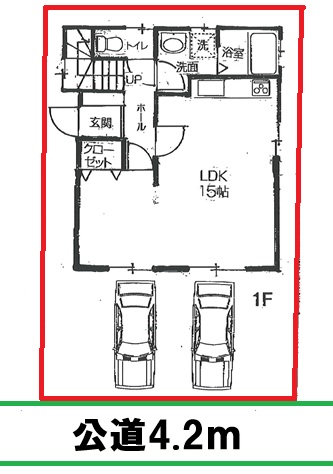
| 間取 | 3LDK |
| 土地面積 | 107.66m²(32.56坪) |
| 建物面積 | 79.69m²(24.1坪) |
| 私道面積 | |
| 築年月 | 2008/10 |
| 学区 | 小学校区:鶴ヶ島市立鶴ヶ島第一小学校 190m 中学校区:鶴ヶ島市立鶴ヶ島中学校 500m |
| 建物構造 | 木造 |
|---|---|
| 階建 | 地上2階建 |
| 建ぺい率 | 60% |
| 容積率 | 200% |
| 地目 | 宅地 |
| 用途地域 | 第一種中高層住居専用地域 |
| 土地権利 | 所有権 |
| 取引態様 | 仲介 |
| 引渡時期 | 相談 |
| セットバック | |
|---|---|
| 接道 | 南東 4.2m(幅員) 公道 |
| 諸費用 | |
| 他法条例 | |
| 建築確認番号 | |
| 取引条件有効期限 | 令和07年12月22日 |
特色
駐車場、南道路、公営水道、公共本下水、プロパンガス、空家、契約不適合責任免責、付帯設備責任免責、現況渡し
コメント
東武東上線『若葉』駅徒歩28分!
鶴ヶ島第一小学校まで約190m、鶴ヶ島中学校まで約500mの小・中学校に近い物件です!
南東道路のため陽当たり良好!
駐車スペース並列2台可能!
本下水・プロパン!
空家のためいつでも内覧可能!
内覧をご希望の方は当社までご連絡下さい!
周辺地図
位置情報に関するご注意:現在位置情報は精査中の為、正確ではない場合があります。あくまで参考程度の情報となります。















