12769:中古戸建 末広町
| 価格 | 2,580万円 |
|---|---|
| 所在地 | 坂戸市末広町 |
| 交通 | 東武東上線 北坂戸駅まで 徒歩4分 |
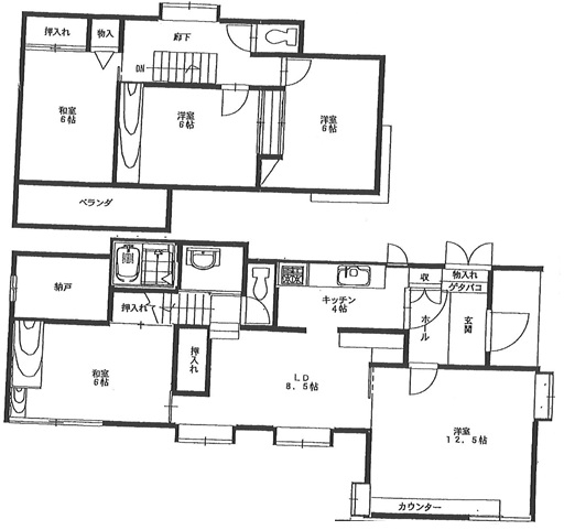
| 間取 | 5LDK |
| 土地面積 | 184.16m²(55.7坪) |
| 建物面積 | 119.31m²(36.09坪) |
| 私道面積 | - |
| 築年月 | 1980/12 |
| 学区 | 小学校区:坂戸市立片柳小学校 950m 中学校区:坂戸市立桜中学校 1,300m |
| 建物構造 | 木造スレート葺 |
|---|---|
| 階建 | 地上2階建 |
| 建ぺい率 | 60% |
| 容積率 | 200% |
| 地目 | 宅地 |
| 用途地域 | 第一種中高層住居専用地域 |
| 土地権利 | 所有権 |
| 取引態様 | 仲介 |
| 引渡時期 | 相談 |
| セットバック | |
|---|---|
| 接道 | 東 6m(幅員) 公道 |
| 諸費用 | |
| 他法条例 | |
| 建築確認番号 | |
| 取引条件有効期限 | 令和07年12月22日 |
特色
駐車場、公営水道、公共本下水、都市ガス、契約不適合責任免責、現況有姿
コメント
東武東上線『北坂戸』駅徒歩4分の駅近物件!
片柳小学校・桜中学校エリア!
都市ガス・本下水!
内覧をご希望の方は当社までご連絡下さい!
周辺地図
位置情報に関するご注意:現在位置情報は精査中の為、正確ではない場合があります。あくまで参考程度の情報となります。














