12839:中古戸建 五味ヶ谷
| 価格 | 2,490万円 |
|---|---|
| 所在地 | 鶴ヶ島市大字五味ヶ谷 |
| 交通 | 東武東上線 鶴ヶ島駅まで 徒歩12分 |
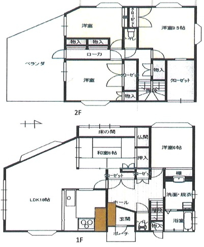
| 間取 | 5LDK |
| 土地面積 | 156.34m²(47.29坪) |
| 建物面積 | 137.14m²(41.48坪) |
| 私道面積 | - |
| 築年月 | 1994/11 |
| 学区 | 小学校区:鶴ヶ島市立杉下小学校 1,100m 中学校区:鶴ヶ島市立富士見中学校 1,500m |
| 建物構造 | 木造 |
|---|---|
| 階建 | 地上2階建 |
| 建ぺい率 | 60% |
| 容積率 | 200% |
| 地目 | 宅地 |
| 用途地域 | 第二種住居地域 |
| 土地権利 | 所有権 |
| 取引態様 | 仲介 |
| 引渡時期 | 相談 |
| セットバック | |
|---|---|
| 接道 | 西 4m(幅員) 公道 5.8m(接面) 東 公道 南 公道 |
| 諸費用 | |
| 他法条例 | |
| 建築確認番号 | |
| 取引条件有効期限 | 令和07年12月22日 |
特色
駐車場、角地、南道路、公営水道、公共本下水、都市ガス
コメント
東武東上線『鶴ヶ島』駅徒歩12分!
杉下小学校・富士見中学校エリア!
三方道路のため陽あたり良好!
都市ガス・本下水!
居住中のため内覧をご希望の方は日程の調整が必要です!
内覧をご希望の方は当社までご連絡下さい!
周辺地図
位置情報に関するご注意:現在位置情報は精査中の為、正確ではない場合があります。あくまで参考程度の情報となります。
















