12980:新築戸建 山田第3期
| 価格 | 3,699万円 |
|---|---|
| 所在地 | 川越市大字山田 |
| 交通 | 東武東上線 川越市駅まで 徒歩52分 東武東上線 川越駅まで バス15分 停歩6分 |
| 最寄バス停 | 浄国寺 停歩6分 |
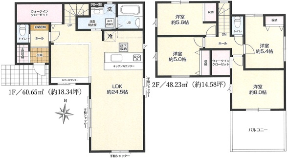
| 間取 | 4LDK |
| 土地面積 | 192.09m²(58.1坪) |
| 建物面積 | 108.88m²(32.93坪) |
| 私道面積 | |
| 築年月 | 2025/11 |
| 学区 | 小学校区:川越市立山田小学校 800m 中学校区:川越市立山田中学校 1,200m |
| 建物構造 | 木造アスファルトシング葺 |
|---|---|
| 階建 | 地上2階建 |
| 建ぺい率 | 60% |
| 容積率 | 200% |
| 地目 | 宅地 |
| 用途地域 | 無指定 |
| 土地権利 | 所有権 |
| 取引態様 | 専任媒介 |
| 引渡時期 | 即時 |
| セットバック | |
|---|---|
| 接道 | 北 4m(幅員) 公道 10.3m(接面) 東 5.2m(幅員) 公道 14.7m(接面) |
| 諸費用 | |
| 他法条例 | |
| 建築確認番号 | 第25UDI1W建03744号 |
| 取引条件有効期限 | 令和07年12月22日 |
特色
駐車場、駐車スペース3台以上、角地、フラット35対応、公営水道、浄化槽、都市ガス、司法書士(売主指定)
コメント
東武東上線『川越市』駅徒歩52分!
山田小学校・山田中学校エリア!
駐車スペース並列3台可能!
北東角地!
広々とした約24.5帖LDK!
約58坪の整形地!
いつでも内覧可能!
内覧をご希望の方は当社までご連絡下さい!
周辺地図
位置情報に関するご注意:現在位置情報は精査中の為、正確ではない場合があります。あくまで参考程度の情報となります。










































































